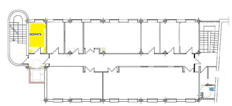
3.1 Despatx
Descripció
L’aula despatx de l’espai jove Kesse està ubicada en la tercera planta de l’edifici.
Un espai tant per a entitats com per a joves o grups de joves que necessitin un lloc tranquil per una reunió, per estudiar desenvolupar un projecte o debatre. També, es pot adaptar a espais d’assessories especialitzades, com ara les relacionades amb temes de salut o altres que demanden més intimitat. Un altre us seria el desenvolupament d‘activitats de creació d’empreses i emprenedoria juvenil.
Dimensions: 4,12m d’amplada per 2,31m de llargada
Capacitat 4 persones

Tercera Planta / Espai Jove Kesse
Material
Aire condicionat
2 penja robes
3 cadires d’oficina amb rodes
1 taula rodona de fusta
1 armari
Accions
Reunions
Treballs en grup
Sala d’estudi
Sala de debat


